
PUNJAB's clear mission is to facilitate a profitable relationship between technologies, Innovators and ultimate end users.

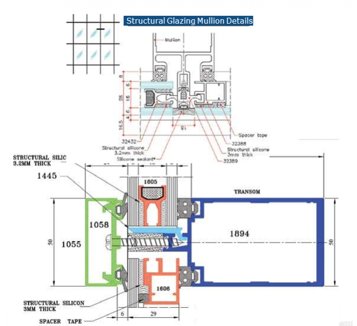
Curtainwall is an aluminum-framed wall containing infills of glass. The framing is attached to the building structure and does not carry the floor or roof loads of the buildings. The wind and gravity loads of the curtain wall are transferred to the building structure, typically at the floor line. Structural Glazing is a system of bonding glass to an aluminum frame of curtainwall utilizing a high strength, high-performance silicone sealant, and these silicone sealants are specifically designed and tested on structural glazing. In this dynamic wind, loads are transferred from the glass, by the structural silicone sealant, to the perimeter structural support. It increases the thermal efficiency of buildings because the exterior exposure of metal framing is either reduced or eliminated. It reduces or eliminates water and air infiltration and it reduces the potential for thermal breakage of glass.
Type of curtain wall system
1. Unitized curtain wall.
2. Stick system.
Type of Structural Glazing
1. 4-way structural glazing.
2. 2-way structural glazing.
3. Conventional structural glazing.
We are proud to be partnered with some of the world-class system providers in curtainwall, such as INSTALLUX-FRANCE, ALUMILL-GREECE, REYNEARS - FRANCE.
